8.6.10  各荷载组合下的构件设计内力图
区分 版本 / Revision No. 改善建议者 改善内容 内容列表
产品功能 Ver.112 R3 / No.2009-03
手册内容 Ver.110 R2 / No.2009-02

 

8.6.10.1

楼板设计弯矩包络图

 

功能说明

通过这项菜单可以以图形方式查看楼板的弯矩包络图。楼板只给出跨中和支座处计算截面的弯矩,负值表示负弯矩、正值表示正弯矩。

 

图8.6.10.1  楼板设计弯矩包络图

 

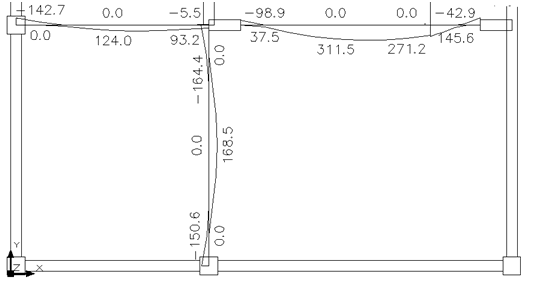
8.6.10.2

梁弯矩图

 

功能说明

本项菜单是以图形的方式查看梁的设计弯矩包络图。

 

图8.6.10.2  梁弯矩包络图

 

8.6.10.3

梁设计剪力包络图

 

功能说明

本项菜单是以图形的方式查看梁的设计剪力包络图。

 

图8.6.10.3  梁剪力包络图

注意事项

各荷载组合下楼板弯矩图、梁弯矩图、梁剪力图、柱上端/下端内力图和墙内力图的输出方式与各荷载工况下各图输出方式相同,详细参见第8.6.9节。

 

 

 

1

Figure功能(2维结果)

2

3为图形结果提供