8.6.2  结构平面简图
区分 版本 / Revision No. 改善建议者 改善内容 内容列表
产品功能 Ver.112 R3 / No.2009-03
手册内容 Ver.110 R2 / No.2009-02

 
功能说明

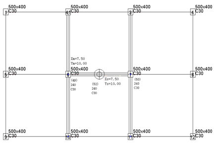
在结构平面简图上,可以显示梁、柱、楼板、墙柱、墙梁的编号、材料名称及截面名称,还可以显示楼层的质心及刚心位置;图中的圆环旁的数字为该层的刚度中心坐标,带十字线圆旁的数字为该层的质心坐标。(下图为质心和刚心重合的特例)

 

图8.6.2-1  结构平面简图

 

         

图8.6.2-2  结构平面简图对话框

 

(1)选择平面
可以选择楼层或命名的平面,在下拉框中可以选择显示的楼层。
(2)输出构件类型

在复选框中可以勾选显示的构件类型,可选择的构件有梁、柱、楼板、墙柱及墙梁。
(3)输出选项

在复选框中可以勾选显示的内容,可供选择的显示内容有构件号、质心、刚心、截面名称及材料名称。
(4)显示类型

可以设定图形中显示字体的大小及构件的显示颜色,还可以将图形导出为DWG文件。

 

注意事項

(1)墙柱、墙梁在前处理分析时没有这个概念,只是后处理需要把剪力墙的设计结果表示出来而人为增加的概念。

(2)墙柱:剪力墙的一个配筋墙段称为墙柱。墙柱可由几个墙元组成,剪力墙的边缘构件属于墙柱的一部分。

(3)墙梁:是指上、下层剪力墙洞口之间的部分。这部分分析是按墙元来模拟,设计时按梁的内力来整理并按梁的公式计算配筋。

图8.6.2-3  墙梁、墙柱示意图

 

1

Figure功能(2维结果)

2

3为图形结果提供