|
|
| |
|
功能说明 |
|
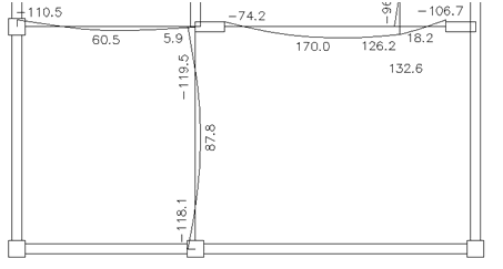
通过这项菜单可以以图形的方式查看楼板在各种荷载工况作用下的弯矩标准值。图中给出了板跨中和支座处的弯矩,正值代表正弯矩,负值代表负弯矩。 |
| |
|

|
|
图8.6.9.1
楼板弯矩图 |
|
|
|
|
|
|
|
功能说明 |
|
本项菜单用图形的方式查看各种荷载工况作用下梁各截面的弯矩标准值。 |
| |
|

|
|
图8.6.9.2
梁弯矩图 |
| |
|
|
|
|
|
功能说明 |
|
本项菜单用图形的方式查看各种荷载工况作用下梁各截面的剪力标准值。 |
| |
|

|
|
图8.6.9.3
梁剪力图 |
|
|
| 注意事項 |
|
梁的内力图是根据每根梁的9个设计截面内力连线而成的;是否考虑梁柱重叠部分的刚域对于梁的内力简图输出位置及梁的计算长度均有影响。 |
| |
|
|
| |
|
功能说明 |
|
通过这项菜单,可以以图形方式查看各种荷载工况作用下柱内力标准值,并可以选择显示柱上端或柱下端的内力。图中每个柱输出5个内力值(Vy/Vz/N/My/Mz),分别为该柱局部坐标系y和z
方向的剪力、轴力及y和z方向的弯矩。 |
| |
|

|
|
图8.6.9.4
柱内力图 |
| |
|
|
| |
|
功能说明 |
|
|
| |
|

|
|
图8.6.9.5-1
墙内力图 图8.6.9.5-2
墙内力输出对话框
|
|
(1)墙柱:勾选此项输出墙柱内力,可选择输出上部或下部的内力值。
(2)墙梁:勾选此项输出墙梁内力,可选择输出弯矩或剪力值。 |
|
|
| |
 |
|
1 |

|
Figure功能(2维结果) |
|
2 |

|
3为图形结果提供 |
|