9.2.3  钢筋
[菜单路径] 楼板详细分析 > 楼板设计 > 钢筋
区分 版本 / Revision No. 改善建议者 改善内容 内容列表
产品功能 Ver.112 R3 / No.2009-03
手册内容 Ver.110 R2 / No.2009-02

 
功能说明

输出楼板支座和跨中每延米计算配筋面积。

          

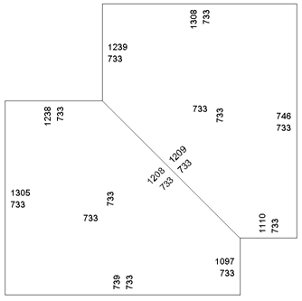
图9.2.3-1  钢筋(构件)

(1)荷载工况/荷载组合:选择荷载工况或荷载组合输出其相应的计算配筋结果,选择"最大"时,将输出各荷载组合作用下的最大计算配筋结果。

(2)楼板配筋选项

构件:输出楼板各支座和跨中的计算配筋面积。当选择输出板顶和板底时,在楼板支座各边上输出两个值,上面的值为负弯矩值计算配筋量,下面的值为正弯矩计算配筋量。当计算配筋量小于最小配筋率时,将输出按最小配筋率计算的配筋量。

图9.2.3-2  楼板钢筋示意图(构件)

 

其中:

Asx1:由板支座上部负弯矩值计算的沿构件局部坐标系x轴方向的支座上部配筋面积;

Asx2:由板支座下部正弯矩值计算的沿构件局部坐标系x轴方向的支座下部配筋面积;

Asy1:由板支座上部负弯矩值计算的沿构件局部坐标系y轴方向的支座上部配筋面积;

Asy2:由板支座下部正弯矩值计算的沿构件局部坐标系y轴方向的支座下部配筋面积;

Asxm:沿构件局部坐标系x轴方向的跨中下部配筋面积;

Asym:沿构件局部坐标系y轴方向的跨中下部配筋面积。

单元:输出各种荷载组合作用下的各单元的计算配筋量。

(3)楼板设计结果

板顶与板底:分别查看板顶和板底的计算配筋量。

X向(Mxx)和Y向(Myy):只有选择按"单元"输出时才会亮显,输出单元按每延米弯矩Mxx和Myy计算的配筋量。