인접구조물의 정의 Home > 모델 > 인접구조물의 정의¶
기능
인접구조물을 가시설해석 모델에 반영하여 인접구조물로 인한 하중의 영향을 고려하고, 인접구조물의 침하/응력검토를 수행합니다.
제한
해석종류에서 FEM을 포함하는 경우에는 "주변빌딩", "터널", "관로", "지하구조물", 사용자 정의" 등 다양한 인접구조물을 모델링하여 해석할 수 있습니다. 해석종류가 탄소성보법인 경우에는 "주변빌딩"에 대해서만 정의가 가능합니다. 해석종류는 Project Setting에서 선택할 수 있습니다.
호출
Main menu : 모델 > 인접구조물의 정의

일반¶
유형¶
-
주변빌딩, 터널, 관로, 지하구조물, 사용자정의 중에서 입력할 인접구조물의 종류을 선택합니다.
선택한 구조물 유형에 따라 입력창이 변경됩니다. -
FEM해석에서는 모든 구조물 유형을 선택할 수 있지만, 탄소성보법에서는 주변빌딩 만을 선택할 수 있습니다.
-
버튼을 이용하여 상세정보를 출력하거나, 대화상자의 크기를 줄여 모델 윈도우를 더욱 넓게 활용할 수 있습니다.
재질¶
- 구조물에 사용되는 콘크리트 재질을 정의합니다. 이를 이용하여 구조물의 강성 및 허용응력을 계산합니다.
인접구조물 입력¶
주변빌딩¶
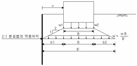
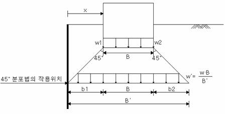
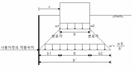
- 탄소성보법에서는 주변빌딩에 의한 하중을 3가지 하중분포 방법을 이용하여 재하합니다.

2:1 하중분포법¶

45도 하중분포법¶

사용자정의 하중분포법¶
- 사용자가 정의한 임의의 각도로 하중이 분포됩니다.

터널, 관로¶
- 관로, 3심원 터널, 5심원 터널에 대해서 제원을 입력할 수 있습니다.
.png)
-
굴착유형으로 Full Face Cut, Bench Cut, Ring Cut, CD Cut 단면을 선택하여 터널구조물의 정확한 모델링을 할 수 있습니다.
-
지보재(Rock Bolts, Shotcrete) 설치를 포함하여 터널구조물의 시공단계 고려가 가능하므로 굴착에 따른 추가 영향성 검토를 정확하게 반영할 수 있습니다.
지하구조물¶
- 격자형 구조물을 구성한 후에, 각 cell들을 Partial Activation을 이용하여 활성화 또는 비활성화하여 지하구조물을 생성합니다.

사용자 정의 구조물¶
- 사용자가 직접 좌표를 입력하여 다양한 형태의 지하구조물을 생성할 수 있습니다.

-
사용자가 입력하는 모든 좌표에 대하여 Polyline을 형성합니다.
-
첫 번째 입력하는 Polyline은 반드시 구조물의 외곽을 정의해야 합니다. 그렇기 때문에 첫 번째 입력하는 Polyline은 폐합을 이루어야 하며 서로 교차하지 않아야 합니다.
-
Polyline을 구성하기 위해 입력되는 좌표는 'Polyline의 기준위치' 로 부터 상대좌표입니다.
사용자정의 구조물 입력하기¶
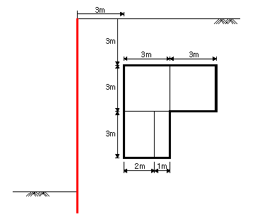
- 아래 그림과 같은 지하구조물을 생성하기 위해서는 4개의 Polyline이 필요합니다. 외곽 벽체 및 슬래브의 두께는 0.5m, 내부 벽체 및 슬래브의 두께는 0.3m로 가정합니다.

- 첫 번째 Polyline의 기준위치는 흙막이벽(우)으로부터 (3, 3)에 위치합니다.
- 시작점은 Polyline의 기준위치로부터 상대좌표를 입력해야 하므로 (0,0)이며 끝점은 폐합도형을 이루어야 하므로 (0,0)으로 입력합니다.
- 중간의 좌표들은 구조물의 외곽을 따라 각 꼭지점에서 Polyline의 기준위치로부터 상대좌표를 입력합니다.

- 두 번째 Polyline의 기준위치는 흙막이벽(우)으로부터 (6, 3)에 위치합니다.

- 세 번째 Polyline의 기준위치는 흙막이벽(우)으로부터 (3, 6)에 위치합니다.

- 네 번째 Polyline의 기준위치는 흙막이벽(우)으로부터 (5, 6)에 위치합니다.

- 아래 그림과 같은 지하구조물을 생성하기 위해서는 4개의 Polyline이 필요합니다. 외곽 벽체 및 슬래브의 두께는 0.5m, 내부 벽체 및 슬래브의 두께는 0.3m로 가정합니다.